- PORTFOLIO

161 Castlereagh Street
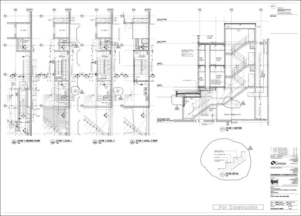
The 161 Castlereagh St project in central Sydney in is an office tower of 43 levels, designed by FJMT as the winner of an international design competition. The Green Building Council of Australia has awarded the project a 6 Star Green Star – Office Design v2 rating, making it the largest office building in NSW to achieve this result.
Legion House, which dates from 1902, is part of the 161 Castlereagh Street project. It is being refurbished as a carbon neutral office building, designed to be disconnected from the mains electricity grid. WEBBER completed the documentation of Legion House, 167 Castlereagh and the Ground floor public/retail spaces. In addition Post documentation services were provided.




